Change of Use:
For this commercial project, we successfully managed the change of use for a 1,663 sq ft space, converting it from storage/garage to a fully functional office. Our team navigated the complex permitting process, ensuring compliance with all relevant regulations, including securing DAS clearance, processing the Eng Process Fee Ordinance 176,300, and adhering to the "Q" conditions and Specific Plan requirements. Additionally, we handled approvals for the CPC and ZA Case, while ensuring sewer availability compliance for the site. This project highlights our expertise in change of use permits, commercial development, and managing projects within strict zoning and regulatory frameworks.
Change of Use:
For this commercial project, we expertly managed the change of use from a warehouse to an office space, ensuring full compliance with local regulations and requirements. Our team oversaw the processing of the Eng Process Fee Ordinance 176,300 and adhered to the specific "D" conditions related to zoning. We also managed the parking lot landscaping and water management requirements, secured sewer availability clearance, and ensured compliance with the CRA (Community Redevelopment Agency) area guidelines. In addition, the project adhered to the local Specific Plan and obtained DAS clearance for design and architectural standards. This project underscores our expertise in commercial change of use, warehouse-to-office conversions, and navigating complex zoning and regulatory processes.
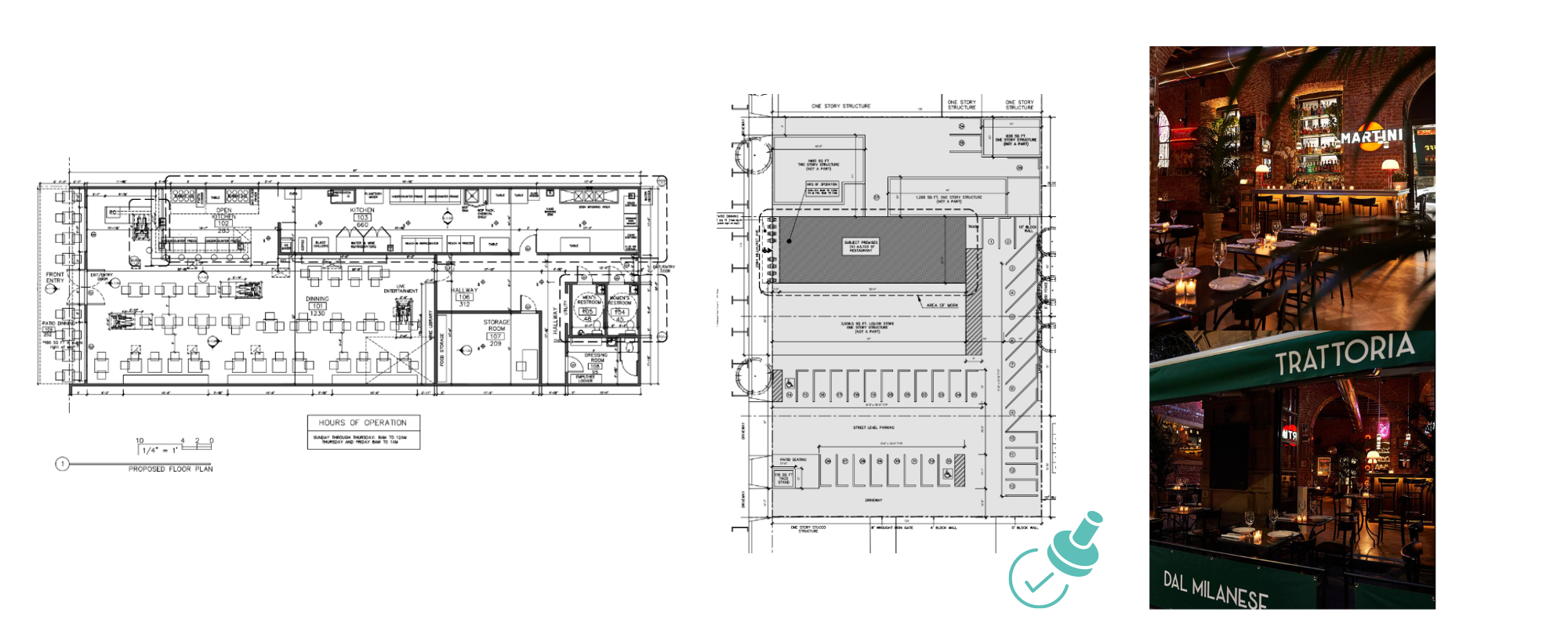
Permit Expediting:
For this commercial tenant improvement project, we provided a full range of services to obtain a building permit and complete alterations to an existing 3,108 SF commercial space for an Italian restaurant with a full liquor license. Our team coordinated closely with both the Planning Department and Health Department to ensure all requirements were met for a smooth approval process. The project, located in a C4-1D zoning area, involved detailed modifications to meet the standards for restaurant design, food safety, and liquor licensing. This project demonstrates our expertise in tenant improvements, restaurant build-outs, and navigating complex health and planning department approvals for commercial spaces.